Project Description
Proyecto: Propuesta – Situación: Villanueva de la Cañada (Madrid) – Superficie: 6.000 m²
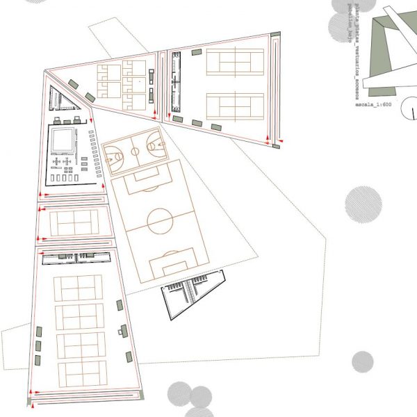
Pabellón deportivo con un fuerte carácter abierto, donde el usuario pueda albergar los volúmenes que lo conforman para el desarrollo de deportes indoor, así como la práctica de deportes al exterior tanto en el espacio central formado por las dos piezas que lo conforman, como en los espacios que rodean el conjunto.
El acceso al interior se produce por todas las franjas continuas donde apoyan las dos piezas, así como el acceso al espacio interior se produce por los pasos bajo los espacios volados de las piezas que conforman el pabellón.
PROCESO

